Проектирование с нами легко и комфортно. Вот почему
Наша цель – воплотить в жизнь дом вашей мечты, который будет радовать вас годами. Доверьтесь профессионалам – выберите нас для осуществления вашего проекта!
Проект в подарок
В случае оформления контракта на строительство, компенсируем расходы, понесённые за услуги.
Вне конкуренции
Разработаем множество альтернативных предложений любой сложности.
Выгодные цены
Предлагаем качество и надёжность по доступным ценам, гарантируем максимальную выгоду при покупке
Разрешение на строительство
Предоставляем помощь в подготовке документов для получения строительного разрешения.
Почему стоит выбрать индивидуальный проект
Индивидуальное проектирование
Современная архитектура позволяет реализовывать творческие идеи, а наша компания имеет опыт в реализации разнообразных проектов жилых зданий и коттеджей.
Преимущества индивидуального проектирования
- Уникальность дизайна: Ваш дом будет полностью соответствовать вашим вкусам и желаниям, отличаясь от типовых проектов.
- Оптимальное использование участка: Проект будет максимально учитывать особенности вашего участка, его рельеф, ориентацию относительно сторон света и расположения соседних построек.
- Эргономичность пространства: Проект предусматривает эргономические решения, согласно вашему образу жизни и потребностей, что улучшает комфорт и функциональность жилых пространств.
- Экологичность: Возможность выбора современных материалов и технологий для обеспечения низких затрат на эксплуатацию и минимального воздействия на окружающую среду.
- Гибкость планировки: Любые изменения в планировке могут быть внесены на этапе проектирования, что позволяет создать оптимальное пространство для каждой комнаты.
- Выгодная цена: Заблаговременное планирование проекта помогает точно оценить стоимость строительства.
Готовый проект
Использование готовых проектов домов может сэкономить время и средства при строительстве, однако они имеют ряд существенных недостатков по сравнению с индивидуальным проектированием.
Недостатки перед инивидуальным проектированем
- Стандартизация: Готовые проекты часто не учитывают индивидуальные предпочтения жильцов и особенности участка, что может привести к компромиссам в удобстве и эстетике.
- Неоптимальное использование территории: Проект не всегда максимально эффективно распоряжается площадью участка, оставляя мало места для сада или двора.
- Изменения и дополнения: Внесение изменений в готовый проект для его адаптации к личным нуждам может повлечь дополнительные расходы и сроки строительства.
- Отсутствие визуальной уникальности: Типовой проект не может предложить эксклюзивность, в результате чего дом может быть внешне идентичен другим постройкам аналогичного дизайна.
- Интеграция с окружающей средой: Индивидуальный дизайн позволяет лучше интегрировать дом в окружающую среду.
- Проектные ошибки: Проекты могут содержать проектные ошибки или неучтенные аспекты, требующие доработок на этапе строительства.
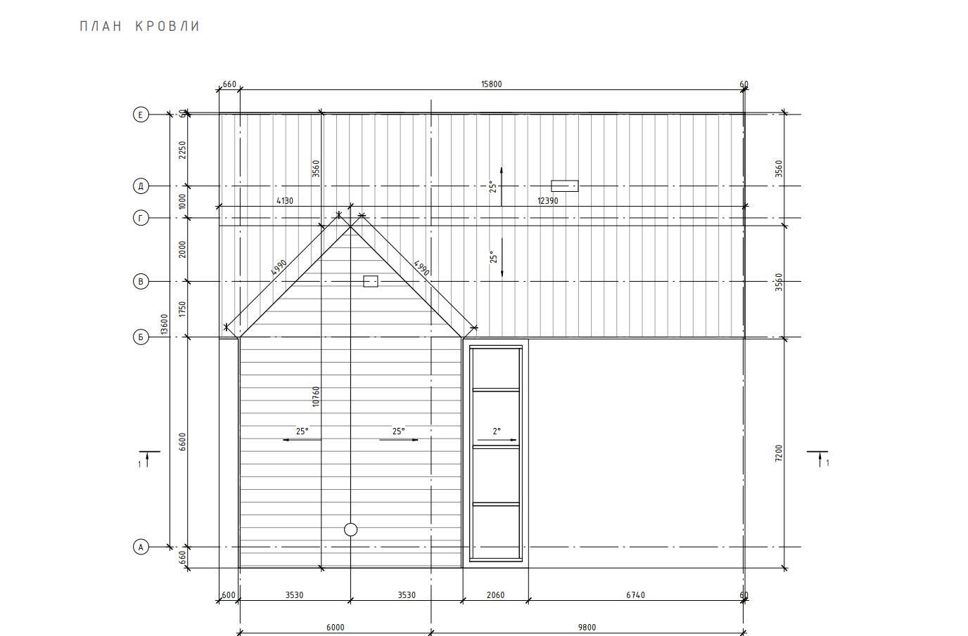
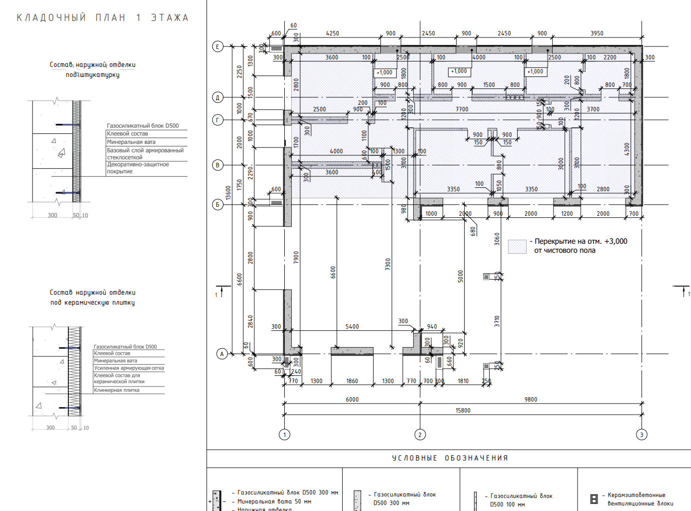
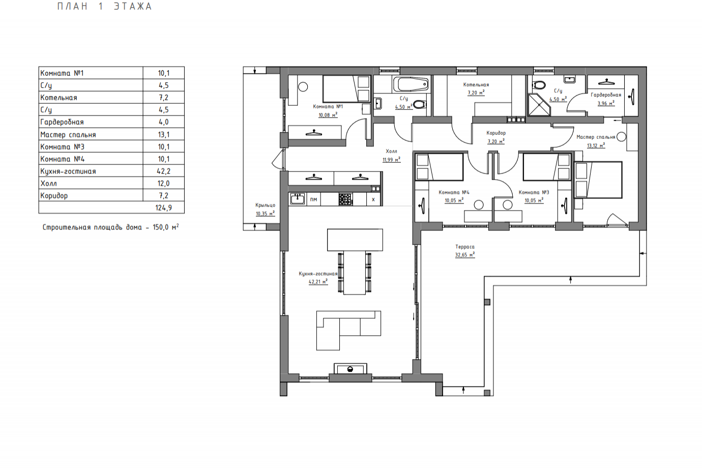
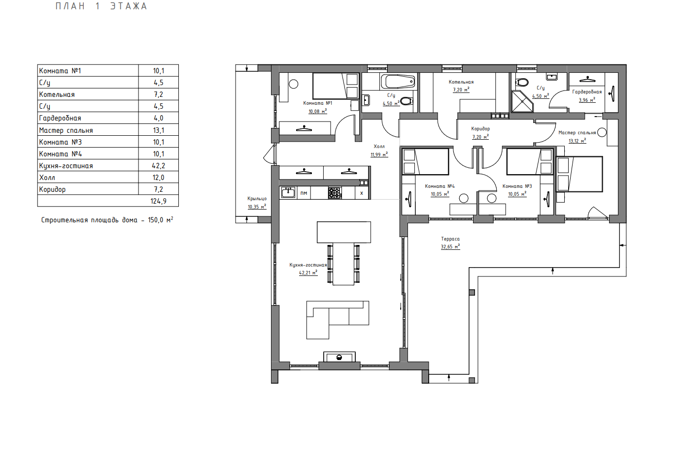
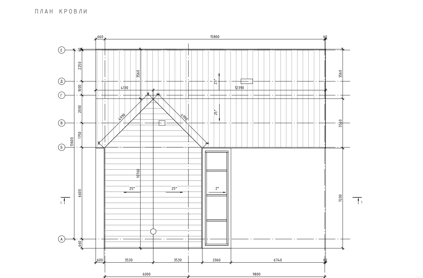
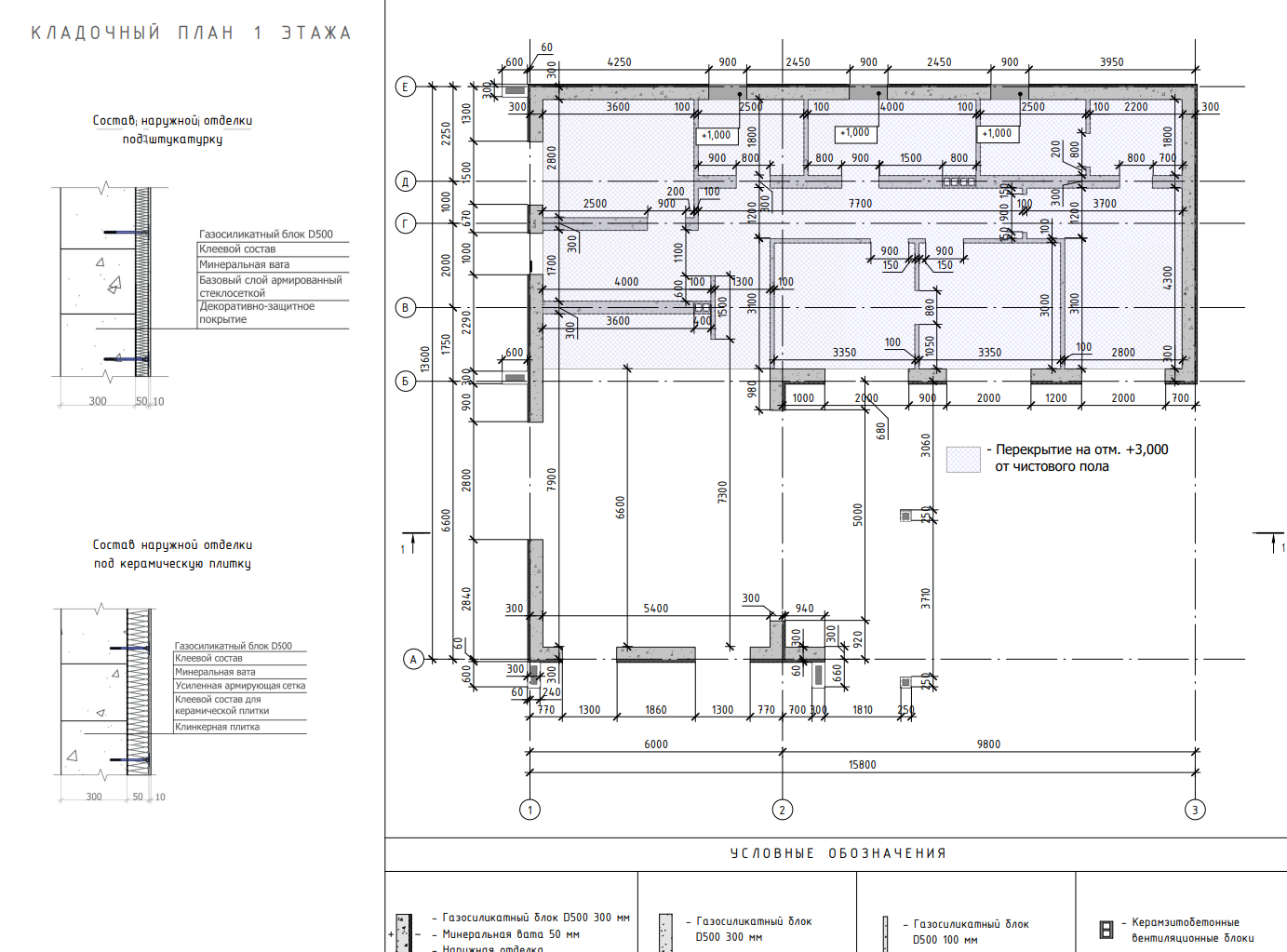
Примеры готовых проектов и документации, которые вы получаете
Проект готового дома
Готовый проект дома предлагает множество преимуществ, включая удобство использования, сокращение временных и финансовых затрат, а также обеспечивает безопасность проживающим за счет применения строгих мер контроля качества и отлаженных методов строительства.
Удобный формат
Мы создали доступный и понятный формат, благодаря которому вы можете легко находить необходимую информацию и ресурсы, быстро ориентироваться в разделах и эффективно реализовывать свои проектные задачи.
Пригласите замерщика в удобное для вас время
Этапы работ при проектировании жилого дома
Примеры наших работ
Мы гордимся нашими работами
Подготовка к консультации
Чтобы разработать идеальный проект дома по индивидуальному заказу, мы придаем значение комплексному подходу. Во время консультационной встречи с клиентом мы рассматриваем различные аспекты, связанные с проектированием.
«В своей работе мы руководствуемся правилом: чем тщательнее проработка, тем качественнее результат»
Архитектор уточнит у вас предполагаемую дату начала строительства дома. Он также подскажет, планируется ли на участке возведение дополнительных сооружений или малых архитектурных форм и как будет организовано общее благоустройство территории.
Борис Иваненко
Архитектор
Галерея
Почему лучше заказывать дом у нас
Необходимо реализовать успешное строительство с полноценным выполнением установленных законодательством требований? Компания «Горизонталь» в своей работе обладает всем необходимым, чтобы квалифицированно реализовать проект любой степени сложности! Мы используем только высококачественные стройматериалы и применяем успешные современные технологии!
Сделай первый шаг к красивому участку
Оставьте заявку и наш специалист свяжется с вами в ближайшее
время
2
Согласуем
Подберем проект для Вас, внесем изменения под
параметры вашего дома
3
Подпишем
Обговариваем сроки работ и удобный для Вас способ
оплаты, заключаем договор
4
Доставим
Бережно доставим и выгрузим материалы для
строительства
5
Построим
Проведем полный комплекс строительных и отделочных
работ
6
Сдадим
Вы принимаете нашу работу, подписываете акт
сдачи-приемки дома, после заезжаете в дом своей мечты
Часто задаваемые вопросы
Можно ли построить дом по индивидуальному проекту?
Да, мы предлагаем строительство как по готовым проектам, так и по индивидуальным, разработанным с учетом всех пожеланий клиента.
Какой порядок работы с клиентом?
Мы начинаем с консультации и разработки проекта, после чего подписываем договор и приступаем к строительным работам. На всех этапах заказчик информируется о ходе выполнения работ.
Какие технологии и материалы вы используете?
Мы используем современные строительные технологии и материалы высокого качества, что позволяет создавать долговечные и энергоэффективные здания.
Какие строительные услуги вы предоставляете?
Мы предлагаем полный спектр строительных услуг, включая проектирование, строительство коммерческих, промышленных и административных объектов, а также выполнение отделочных работ и реконструкцию зданий.
Какие технологии строительства вы используете?
Мы используем современные строительные технологии, включая монолитное строительство, строительство из блоков и кирпича, что обеспечивает высокую прочность и долговечность объектов.
Каковы сроки строительства?
Сроки зависят от масштабов и сложности проекта. В среднем строительство коммерческого здания занимает от 6 до 12 месяцев, однако точные сроки определяются на этапе разработки проекта.
Не нашли ответ на свой вопрос?
Задайте его нашим специалистам
Контакты
Адрес
улица Академика Легостаева, 10
Телефон
График работы
Пн - Пт: 08:00 - 18:00
Средняя оценка услуги - 9.3 на основании 22 отзывов и 22 оценок


